Features

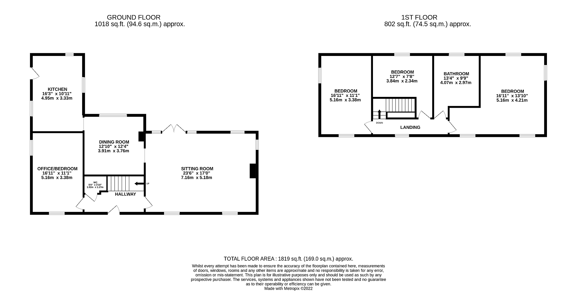
  • Four-Bedroom Family Home In Circa 7.5 Acres
  • Situated On The Outskirts Of Eastoft
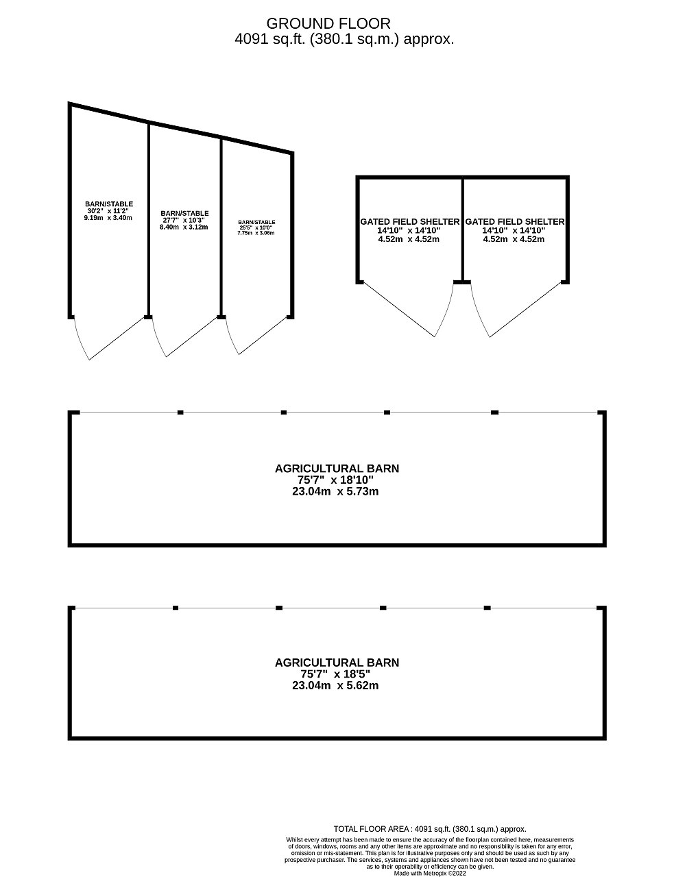
  • Equestrian Facilities Stabling, All Weather Menage
  • Fenced Paddocks & Family Gardens
  • Spacious Lounge With Stove
  • Dining Room Open To Traditional Kitchen
  • Ground Floor Fourth Bedroom/Sitting Room
  • EPC: D--Tenure: Freehold--Council Tax: E

EPC

Council Tax Band: Ask Agent

Tenure: Ask Agent

 
This superb equestrian property, built circa 2009 in a period traditional farm house style, set in outstanding grounds approaching seven and a half acres. To Include excellent stabling, outbuildings and an all weather menage and paddocks.

 

Last Modified 27/01/2026

We use cookies to ensure that we give you the best experience. If you continue using this website, we'll assume that you are happy about that.
Make Enquiry