Features

  • Equestrian facilities and over 7 acres of land
  • Scope to renovate, extend or redevelop (PP granted)
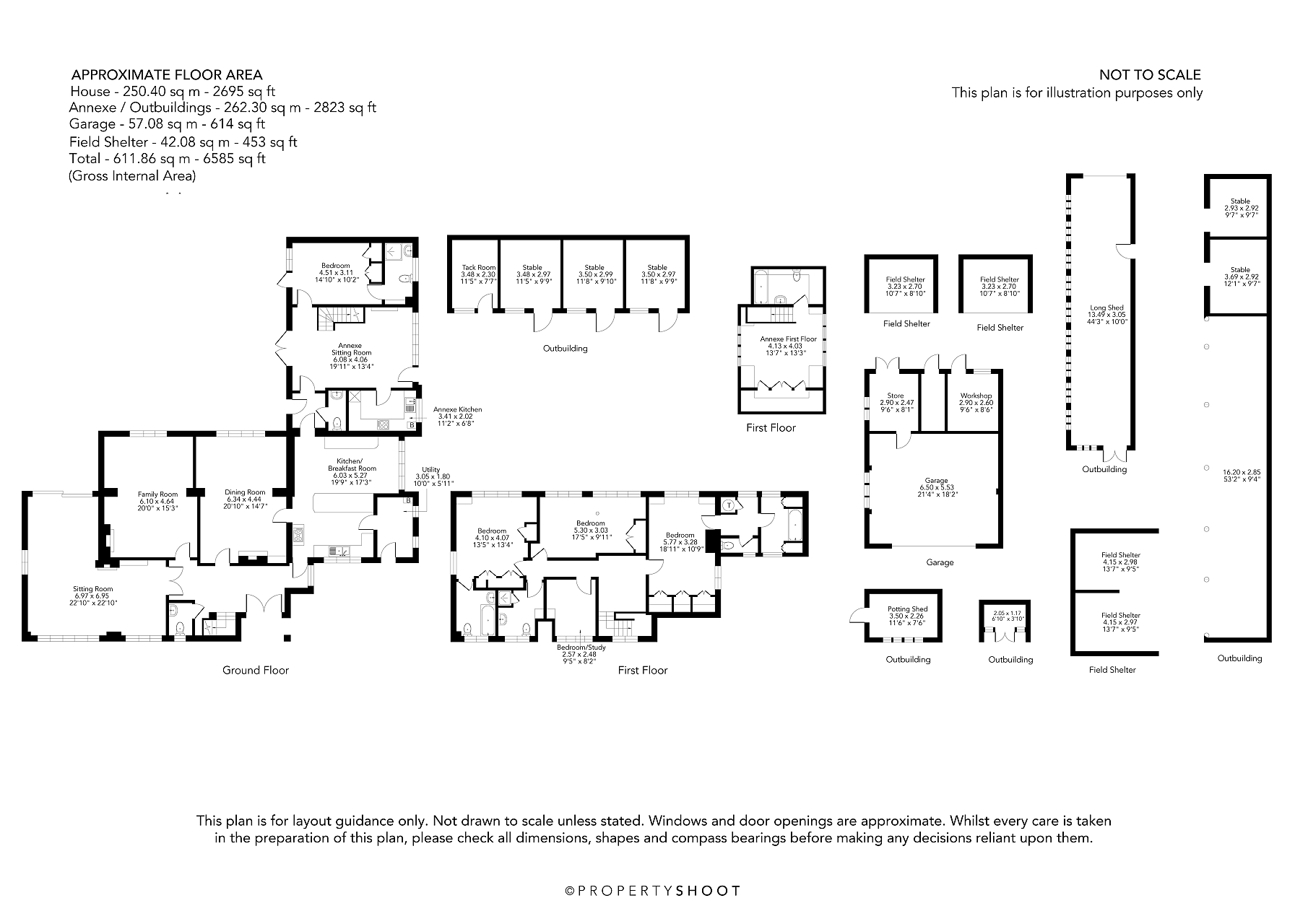
  • Total accommodation exceeding 5,500 sq. ft.
  • Four Bedroom Detached Main House
  • Two Bedroom Annex
  • Three paddocks, a menage and multiple stables
  • Private driveway with detached double garage
  • Peaceful semi-rural setting with scenic views

EPC

Share This Property

Council Tax Band: Ask Agent

Tenure: Freehold

 
Positioned just over a mile from the charming village of Great Missenden and within easy reach of Amersham and Wendover, the location offers a superb balance of tranquillity and accessibility.

The Main House
Accessed via a gated entrance off Rignall Road, the house is set well back from the road and surrounded by mature gardens. The ground floor is arranged around a central hallway and includes three separate reception rooms—each with character features such as original brick fireplaces and leaded windows. The L-shaped sitting room is light-filled and dual aspect, with French doors opening onto the rear garden.

The kitchen/breakfast room is well-sized with granite worktops, tiled flooring, a peninsula unit, and a Rangemaster cooker, with multiple access points including from the utility room, garden and annexe. There is also a convenient cloakroom beneath the stairs.

Upstairs, the main house comprises four bedrooms (three doubles and one single). Bedroom one features an en suite with separate WC and bathroom. Bedroom two also has an en suite and built-in storage, while the remaining rooms share a family shower room and separate WC.

The Annexe
Interlinked but independently accessible, the two-bedroom annexe provides excellent space for multi-generational living, guest accommodation or staff quarters. The layout includes a ground floor sitting room with French doors, a fitted kitchen, cloakroom, and one double bedroom with en suite shower room. Upstairs, there is a second dual-aspect bedroom with its own en suite bathroom. This annexe benefits from its own entrances at both front and rear, offering privacy and flexibility.

Grounds & Gardens
The house sits centrally within its plot, surrounded by landscaped gardens and bordered by mature trees and natural hedging. A large lawn area, potentially once a tennis court, lies to the front, with further lawns wrapping around to the rear and leading toward the paddocks and woodland backdrop.

Equestrian Facilities
Shercot is perfectly equipped for equestrian use, featuring:

A floodlit menage with sand and shredded rubber surface

Three primary stables and a tack room

Two additional stables integrated into a long open bay outbuilding

Two timber field shelters (one double, one single)

Approximately 7 acres of land divided into three fenced paddocks

A timber storage shed (approx. 44 ft.) for hay, tools or machinery

Outbuildings & Parking
A detached double garage (approx. 21 ft. x 18 ft.) sits beside the house, offering power, lighting, and further secure storage via a rear workshop and integral store. Driveway parking is ample for several vehicles.

Development Potential
Shercot presents the exciting possibility of creating a brand-new home. Planning consent has already been granted for the construction of a contemporary three-storey replacement dwelling, totalling in excess of 5,000 sq. ft. (Ref: PL/22/0927/FA).

Location & Schooling
Great Missenden offers a variety of shops, cafes and amenities along its historic high street. It's also home to the Roald Dahl Museum, a cricket club and scenic walking routes. The property lies within catchment for Great Missenden C of E School and several highly regarded grammar schools in Aylesbury, Chesham, High Wycombe and Little Chalfont.

IMPORTANT NOTE TO PURCHASERS:
We endeavour to make our sales particulars accurate and reliable, however, they do not constitute or form part of an offer or any contract and none is to be relied upon as statements of representation or fact. Any services, systems and appliances listed in this specification have not been tested by us and no guarantee as to their operating ability or efficiency is given. All measurements have been taken as a guide to prospective buyers only, and are not precise. Please be advised that some of the particulars may be awaiting vendor approval. If you require clarification or further information on any points, please contact us, especially if you are traveling some distance to view. Fixtures and fittings other than those mentioned are to be agreed with the seller.

JFP250026

 

Last Modified 11/10/2025

We use cookies to ensure that we give you the best experience. If you continue using this website, we'll assume that you are happy about that.
Make Enquiry